Walshford Way, Borehamwood, WD6
Property Features
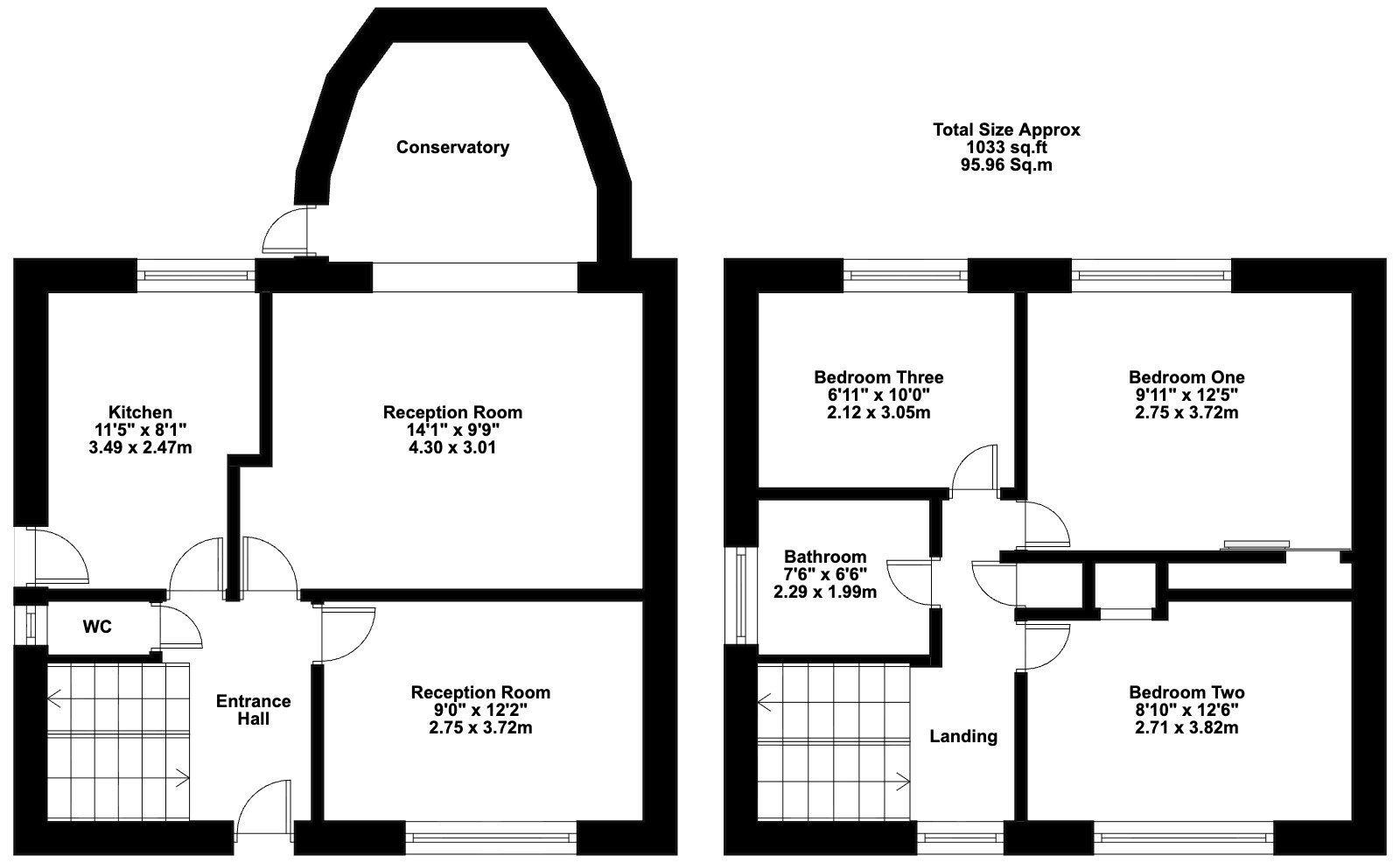
- Extended semi detached house
- Three double bedrooms
- Separate kitchen
- Three receptions
- Downstairs guest W.C.
- Large private mature garden with side access
- Potential to extend to the side and rear (stpp)
- Potential to add off street parking (stpp)
- CHAIN FREE
Property Summary
Full Details
L&H Residential are proud to bring to the market this extended three-bedroom semi-detached house offers spacious and versatile accommodation, ideal for families or those seeking generous living space. The property features three double bedrooms, providing ample room for comfortable living and storage. A separate kitchen allows for dedicated meal preparation, while three distinct reception rooms offer flexibility for dining, entertaining, or relaxation.
A downstairs guest W.C. adds convenience for residents and visitors alike. The layout is thoughtfully designed to maximise both privacy and practicality, with well-proportioned rooms throughout. The property also presents exciting potential to extend to the side and rear (subject to planning permission), allowing buyers to further tailor the home to their needs. Additionally, there is scope to add off street parking (subject to planning permission), enhancing the practicality of the property.
This home is offered chain free, ensuring a straightforward purchase for prospective buyers. With its generous proportions, flexible layout, and potential for further development, this property represents an excellent opportunity in a sought-after residential location. Early viewing is highly recommended to appreciate the full scope and potential of this attractive semi detached house.



















